Image

VIVRE SA VILLE

De la création de produits originaux aux nouvelles technologies de l’information et la communication, les entreprises locales sont un véritable atout de la région. Economie, banque, immobilier, urbanisme, architecture… cette rubrique se place au plus près des initiatives et transformations de nos villes. Ici, le concours
octobre 2022

Vivre Ensemble en Centre Urbain, Gardanne

  • Prix Réhabilitation
Image

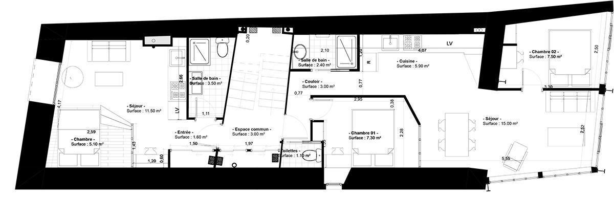
Le projet consistait à transformer une maison de village, située au cœur de Gardanne, en cinq logements et un commerce. Il s’agissait de repenser le mode de vie, de trouver d’autres solutions que les deux modèles habituels : le logement collectif neuf souvent étriqué ou mal conçu et le logement individuel expansif participant à l’étalement urbain. La mutualisation des fonctions de services (buanderie/vélos…), libérant de la surface utile, et le partage des espaces extérieurs (cuisine d’été, jardin…), favorisant la rencontre, ont ainsi fait émerger de nouvelles manières de vivre ensemble. Plutôt que de raser une maison très détériorée pour reconstruire, on est intervenu sur l’existant en intégrant une réflexion sur l’optimisation des surfaces, dans le respect de ce qui avait déjà été fait. Dès lors, la rénovation et la restructuration ont pris une dimension d’engagement en faveur d’une architecture durable, au-delà de la simple rénovation énergétique. L’acte architectural dépasse ainsi la traditionnelle remise aux normes et réinvente une nouvelle vie qui valorise ce qui caractérise le bâtiment en l’adaptant à ces nouveaux usages.

Avis du jury
Voici une bien belle réponse architecturale à l’urgence qu’il y a à renouer avec nos centres anciens si dévalorisés en Provence. Nous avons aimé la fraîcheur du propos, militant sur les fondamentaux écologiques et sociaux, mais libre face aux normes techniques et aux codes culturels de la restauration en centre historique.

Agence / architecte
Le Studio Miha a été créé en 2015 par Véronique Chazal et Louiza Fergani. Les parcours, les expériences et la complémentarité des deux architectes justifient le savoir-faire en termes d’expertise et de conseil du Studio. Leurs compétences et leurs connaissances spécialisées leur permettent d’aborder un projet dans sa globalité et d’en saisir les enjeux.

Maîtrise d’ouvrage : Maîtrise d’ouvrage privée
Architecte : Studio Miha - Mission complète de maîtrise d’œuvre
Surface : SHON 235 m2
Montant des travaux : 280 000 euros HT
Date de livraison : 2022

Image

Pour partager l’article :

+ de vivre sa ville