Image

VIVRE SA VILLE

De la création de produits originaux aux nouvelles technologies de l’information et la communication, les entreprises azuréennes sont un véritable atout de la région. Economie, banque, immobilier, urbanisme, architecture… cette rubrique se place au plus près des initiatives et transformations de nos villes. Ici, le concours ArchiCOTE vient également tous les ans récompenser les projets d’architectes les plus engagés et inscrits dans leur territoire.

septembre 2022

Maison pour un collectionneur, Le Rouret

  • Prix logement individuel
Image
Grandes ouvertures sur le paysage./© Aldo Amoretti
Image

Maîtrise d’ouvrage : Privée
Architectes : Cyril Chênebeau Architecte
Surface SHON : 240 m2
Montant des travaux : Non communiqué
Livraison : Octobre 2020

Image

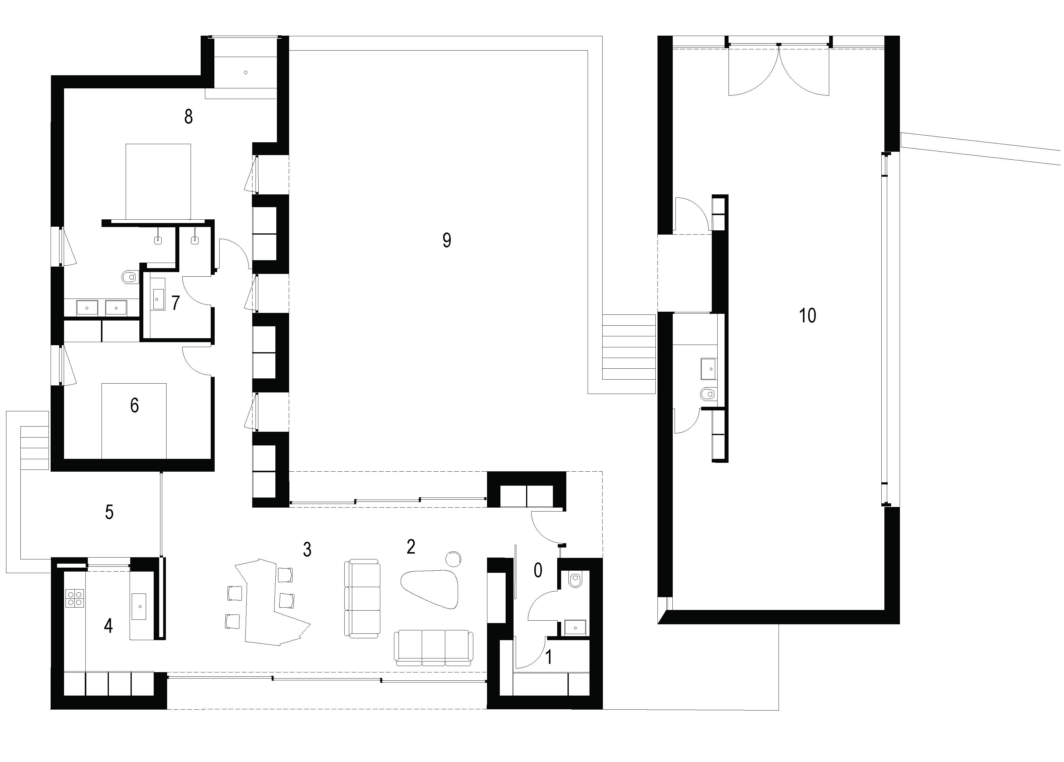
C'est à la lisière d’une zone naturelle protégée que ce projet a pris place dans la commune du Rouret. Accessible par un ancien chemin forestier, la maison de plain-pied avec son bassin de nage révèle la topographie du site tout en souplesse sans générer de remodelage du terrain. Les espaces de cette demeure s’organisent en U, ménageant une petite cour intérieure à l’image d’un corps de ferme. Elle se compose notamment de deux volumes principaux – un premier en équerre qui accueille les fonctions d’habitation et abrite un bain japonais avec vue sur l’oliveraie de la parcelle, ainsi que deux autres espaces servants comprenant un espace de vie avec un grand portique de 9 m et un espace d’exposition destiné à accueillir la collection d’œuvres d’art du propriétaire. Le caractère rural de cette maison contemporaine se reflète jusque dans le choix des matériaux avec des toitures en tuiles canal, des façades blanchies à la chaux et ponctuellement des blocs de béton brut sablés.

L’avis du jury : Nous sommes ici face à du grand art, un projet qui aurait pu être dans une démonstration ostentatoire comme on le voit sur la Côte d’Azur et qui à l’inverse est particulièrement bien intégré dans son milieu rural. La maison et son plan d’eau viennent surenchérir sur la beauté du terrain en restanque, tandis qu’à l’intérieur tout est minimaliste et épuré comme dans une galerie.

L’agence : Architecte diplômé de l’Ecole d’Architecture de Paris Tolbiac, Cyril Chênebeau a développé depuis 2008 ses propres projets en parallèle d’un partenariat avec l’atelier Barani, avec lequel il a livré notamment en 2014 une opération de 80 logements avec commerces et mairie annexe dans le quartier des Moulins à Nice.

Pour partager l’article :

+ de vivre sa ville